Contact
Buying or Selling your House in Western Newfoundland and Labrador
Home
Properties
Communities
Corner Brook
Deer Lake
Happy Valley-Goose Bay
Port aux Basques - Codroy Valley
St. Anthony
Stephenville
Subdivisions
Bay Crescent
Discovery Ridge
Foote Street
Miller Crescent
Shamrock Crescent
Stella's Place
Valleyview Estates
Our Team
About Us
Expert Advice
Contact Us
0
Home
Properties
436 Main Road
436 Main Road
Great Salmonier, Newfoundland & Labrador
$234,500
Previous
Next
Quick Summary
Location
Great Salmonier, Newfoundland & Labrador
Price
$234,500
Building Type
House
Property Type
Single Family
Status
For sale
Area
1830 sqft
Beds
3
Baths
2
Age
n/a
Postal Code
A0E 1N0
MLS®
1294824
Courtesy Of
3% Realty East Coast
Database ID:64037 DDF Feed ID: 29403661 Latitude: 47.06557 Longitude: -55.207408
Property Description
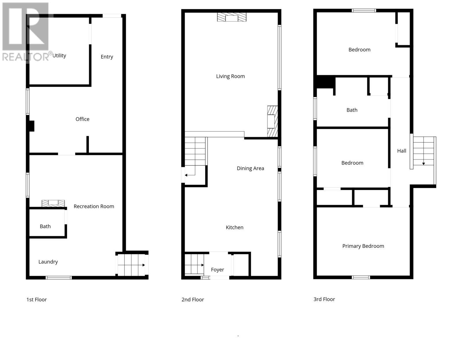
Welcome to beautiful Great Salmonier — where peaceful living meets incredible value! Enjoy the perks of no property tax, no water tax, and well water, all while being surrounded by nature in every direction. Backing directly onto a greenbelt and wrapped in trees, this property offers the privacy and tranquility so many buyers are searching for. This 3-bedroom, 1.5-bath home is full of warmth and character. Step inside through a charming farmhouse-style sliding door into the bright, open-concept kitchen, living, and dining area. The kitchen showcases shaker-style cabinetry, stainless steel appliances, and a custom accent wall that flows beautifully into matching feature walls in the living room and upstairs hallway. Crown moulding in the main living area and bathroom adds a polished touch, while shiplap detail in the hallway brings even more charm. Just off the kitchen, a door leads to the front deck — the perfect spot to enjoy your morning coffee while soaking in breathtaking mountain and ocean views, with nothing but peace and birdsong around you. Oversized windows throughout the home capture those stunning views and fill the space with natural light. Upstairs offers three comfortable bedrooms and a full bathroom. Downstairs is finished in gorgeous pine, creating a cozy retreat complete with a rec room, laundry area, half bath, and a dedicated dog grooming space with its own separate entrance — ideal for an at-home business or easily opened up to create a larger rec room if preferred. Outside, you’ll also find a garage with a wood stove, making it a perfect year-round workshop or hobby space. If you’ve been dreaming of privacy, scenery, and a home with personality and flexibility — this one is ready to impress! Don't wait, book your private showing today! (id:47053)
Contact An Agent
Your Name
*
Email
*
Phone
I prefer to be contacted via
email
phone
text
I would like more information about 436 Main Road, Great Salmonier, listed for $234,500.
Comments or Questions
Building Information
Building Type: House
3 Beds
2 Baths
1 Half bathroom
Area: 1830 sqft
Forced air
Oil, Wood Heat
Fireplace
Vinyl siding
Flooring: Laminate, Other
Poured Concrete foundation
1 story
Dug Well
Full Details
General
MLS® Number:
1294824
Equipment Type:
Other
Ownership Type:
Freehold
Price:
$234,500
Property Type:
Single Family
Rental Equipment Type
Other
Storage Type:
Storage Shed
Transaction Type:
For Sale
View Type:
Ocean view, View
Zoning Description:
Residential
More Information Link:
https://www.realtor.ca/real-estate/29403661/436-main-road-great-salmonier
Land
Size Total Text:
0.243 Acre|under 1/2 acre
Access Type:
Year-round access
Amenities:
Recreation
Fence Type:
Partially fenced
Size Irregular:
0.243 Acre
Building
Bathroom Total:
2
Bedrooms Above Ground:
3
Bedrooms Below Ground:
0
Bedrooms Total:
3
Appliances:
Dishwasher, Refrigerator, Stove
Constructed Date:
1979
Exterior Finish:
Vinyl siding
Fireplace Fuel:
Wood
Fireplace Present:
YES
Fireplace Type:
Woodstove
Flooring Type:
Laminate, Other
Foundation Type:
Poured Concrete
Half Bath Total:
1
Heating Fuel:
Oil, Wood
Heating Type:
Forced air
Stories Total:
1
Size Interior:
1830 sqft
Type:
House
Utility Water:
Dug Well
Rooms
Level
Type
Dimensions
Second level
Bath (# pieces 1-6)
10.8 x 7.4
Second level
Bedroom
13.10 x 9.5
Second level
Bedroom
10.8 x 8.9
Second level
Primary Bedroom
13.11 x 10.2
Basement
Utility room
8.11 x 10.0
Basement
Office
13.11 x 9.10
Basement
Recreation room
13.11 x 18.0
Basement
Bath (# pieces 1-6)
5.3 x 4.0
Basement
Laundry room
5.7 x 5.7
Main level
Living room
13.11 x 18.713.
Main level
Dining room
10.6 x 7.1
Main level
Eat in kitchen
13.11 x 13.3
Main level
Foyer
4.1 x 3.3
Listing information last updated on 2026-02-26 16:32:49 -0330
Search Properties
Region
Corner Brook
Deer Lake
Happy Valley-Goose Bay
Northern Peninsula
Pasadena
Port aux Basques
Stephenville
Property Type
Agriculture
Business
Industrial
Multi-family
Office
Other
Recreational
Retail
Single Family
Vacant Land
Transaction Type
For Lease
For Rent
For Sale
Beds
1+
2+
3+
4+
5+
Baths
1+
2+
3+
4+
5+
Min $
$0
$25,000
$50,000
$75,000
$100,000
$125,000
$150,000
$175,000
$200,000
$225,000
$250,000
$275,000
$300,000
$325,000
$350,000
$375,000
$400,000
$425,000
$450,000
$475,000
$500,000
$600,000
$700,000
$800,000
$900,000
$1,000,000
$1,100,000
$1,200,000
$1,300,000
$1,400,000
$1,500,000
$1,600,000
$1,700,000
$1,800,000
$1,900,000
$2,000,000
$2,500,000
$3,000,000
$4,000,000
$5,000,000
$7,500,000
$10,000,000
Max $
$0
$25,000
$50,000
$75,000
$100,000
$125,000
$150,000
$175,000
$200,000
$225,000
$250,000
$275,000
$300,000
$325,000
$350,000
$375,000
$400,000
$425,000
$450,000
$475,000
$500,000
$600,000
$700,000
$800,000
$900,000
$1,000,000
$1,100,000
$1,200,000
$1,300,000
$1,400,000
$1,500,000
$1,600,000
$1,700,000
$1,800,000
$1,900,000
$2,000,000
$2,500,000
$3,000,000
$4,000,000
$5,000,000
$7,500,000
$10,000,000
Sort By
Lowest Price First
Highest Price First
Date Added
Include Sold / Pending Sale
Mortgage Calculator
Mortgage Amount
$
Downpayment
$
Interest Rate
%
Amortization Period
Years
Payment Frequency
Bi-monthly
Monthly
Semi-monthly
Bi-weekly
Weekly
This calculator is for demonstration purposes only.
Our Tools
Contact Us
Real Estate Alert
Calculation Tools
Complementary Professionals
Online Evaluation
Useful Links
Exclusive Listings
View Exclusive Listings